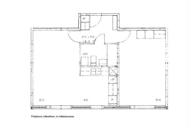
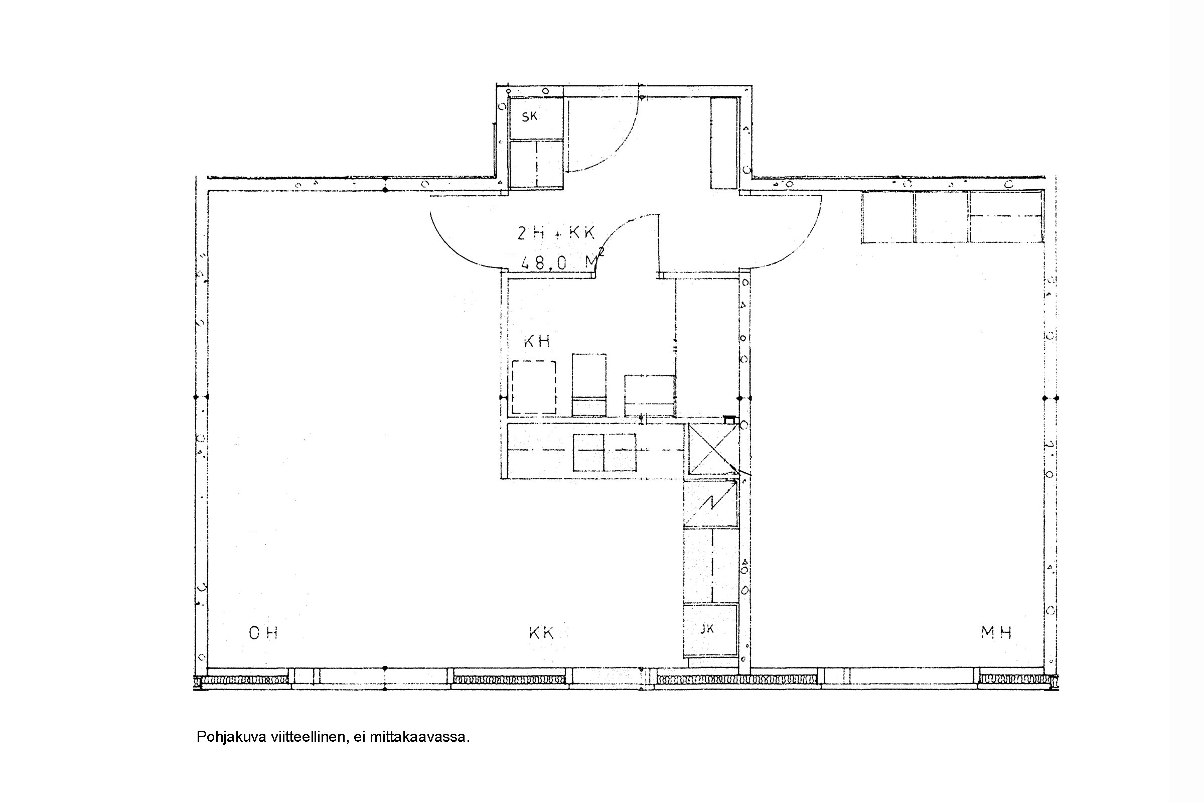
48 m², 2h+k+kph/wc

Nättinummi
Haartmaninkatu 6 G, 20320 Turku
Kerrostalo, 1977

48 m²
2h+k+kph/wc

Mh. 79 000 €
Vh. 79 000 €

Haartmaninkatu 6 G, 20320 Turku

Heti vapaa kaksio Turun Nättinummesta. Asunnossa selkeä pohjaratkaisu ja toimivat neliöt. Taloyhtiö koostuu kolmesta vuonna 1977 rakennetusta kerrostalosta omalla tontilla.

Tällä hetkellä yhtiössä on käynnissä LVIS-hanke. Tämän asunnon kohdalla aikataulu 17.8.2026-20.11.2026. Remontissa uusitaan mm. asunnon kylpyhuone täyttämään tämän päivän vaatimukset ja sen pintamateriaaleihin mahdollista vaikuttaa toukokuuhun 2026 asti. Tämän asunnon kohdalla kustannusarvio n. 37 936,99 euroa.

Länsikeskuksen monipuoliset palvelut sekä Ikean alue ovat lyhyen matkan päässä, ja päivittäiset asiat hoituvat vaivattomasti vaikka kävellen. Liikenneyhteydet Turun keskustaan ja muualle kaupunkiin toimivat erinomaisesti niin bussilla kuin autolla.

Tämä koti sopii sinulle, joka arvostat vehreää ympäristöä, toimivia liikenneyhteyksiä ja palveluita, jotka ovat aina helposti saavutettavissa.

Lisätiedot ja esittelyt:
Henri Laakso puh. 0407799509 / henri.laakso@huoneistomarkkinat.com

Sijainti
Turku, Nättinummi, Haartmaninkatu 6, 20320
Tilat
2h+k+kph/wc
Asuintilojen pinta-ala
48 m²
Kokonaispinta-ala
48 m²
Pinta-alan peruste
Yhtiöjärjestyksen mukainen
Pinta-ala on tarkistusmitattu
Ei
Kerros
2 / 3
Lisätietoja pinta-alasta
Ei tarkistusmitattu. Pinta-alat saattavat tämän ikäisissä kohteissa (yhtiö rekisteröity ennen 01.01.1992) poiketa olennaisestikin asuinrakennusten nykyisten mittaustapojen ja standardien (SFS 5139) mukaan laskettavasta asuintilojen pinta-alasta. Pinta-ala voi siis olla edellä mainittua pienempi tai suurempi.
Lisätietoja autopaikasta
Autopaikkojen vuokrauksen ja hallinnoinnin hoitaa Nättinummen Huolto Oy.
Vapautuminen
Sopimuksen mukaan
Yleiskunto
Hyvä
Keittiön varustus
Jääkaappipakastin, astianpesukone ja liesi
Keittiön liesi
Keraaminen liesi
Keittiön lattiamateriaalit
Laminaatti
Keittiön seinämateriaalit
Tapetti ja koristelaatta
Pesutilojen kuvaus
Katto paneelia.
Pesutilojen varustus
WC-istuin, suihku, kylpyamme, pesukoneliitäntä, pesuallas, bidee-suihku, peilikaappi ja lattialämmitys
Pesutilojen lattiamateriaalit
Laatta
Pesutilojen seinämateriaalit
Kaakeli
Olohuoneen lattiamateriaalit
Laminaatti
Olohuoneen seinämateriaalit
Tapetti ja maali
Makuuhuoneen kuvaus
Makuuhuoneen ikkuna ei aukea. Ikkunasta täytyy vaihtaa se osa, johon avauskahva kiinnittyy.
Makuuhuoneen lattiamateriaalit
Laminaatti
Makuuhuoneen seinämateriaalit
Maali ja tapetti
Säilytystilat
Kaapistot ja häkkivarasto

Taloyhtiön nimi
Asunto Oy Ekmaninrinne
Kunta/kaupunki
Turku
Kaupunginosa/kylä
Nättinummi
Kiinteistötunnus
853-85-47-1
Rakennusvuosi
1977
Tontin pinta-ala
5172,6 m²
Tontin omistus
Oma
Taloyhtiössä sauna
Kyllä
Taloyhtiössä on
Kellarikomero ja urheiluvälinevarasto
Kaavoitus
Asemakaava
Rakennus- ja pintamateriaalit
Betoni
Kattotyyppi
Tasakatto
Katemateriaali
Huopa
Lämmitysjärjestelmä
Kaukolämpö
Ilmanvaihto
Koneellinen ilmanvaihto
Vesijohto
Kunnallisvesi
Viemäröinti
Kunnallinen viemäriverkosto
Piha-autopaikat
48
Energiatodistus
Kyllä
Energialuokka
D2018
Asbestikartoitus
Ei
Lisätietoja asbestikartoituksesta
Kohde on valmistunut ennen vuotta 1994, eikä asbestikartoitusta ole tehty. Ennen vuotta 1994 valmistuneiden rakennusten korjaustöiden osalta otettava huomioon Laki eräistä asbestipurkutyötä koskevista vaatimuksista 684/2015 sekä Valtioneuvoston asetus asbestityön turvallisuudesta 798/2015. Purkutyötä ei saa aloittaa ennen asbestikartoitusta. Kaupan kohteena olevassa huoneistossa ei ole teetetty asbestikartoitusta. Ostaja on tietoinen, että jos hän aikoo tehdä tai teettää huoneistoremontin, hänen tulee tietyissä tapauksissa teettää asbestikartoitus purettaviin materiaaleihin.
Suoritetut korjaukset
SUORITETUT KORJAUKSET: *2003-2004: Ikkunoiden uusinta *2006: Parvekeovien ja ikkunoiden uusinta, parvekkeiden lasitus, huoneistoparvekkeiden betonikorjaus, talon 2 eteläjulkisivun eristerappaus. *2008: Lämpöjohtoverkoston tasapainotus *2012-2013: Porraskäytävien maalaus *2016: Saunojen korjaus *2017-2018: Julkisivun päätyseinien korjaus ja vesikattojen uusinta *2019: Lukituksen uusinta iLOQ järjestelmään *2021: Kuntoarvion laadinta, IV-hormien nuohous ja ilmanvaihdon säätö *2023: Salaojien pesu ja kuvaus, kattoturvatuotteiden asennus *2024: LVIS-hankesuunnitelman aloitus
Suunnitellut korjaukset
HALLITUKSEN NÄKEMYS SEURAAVAN 5-VUODEN AIKANA ESILLE TULEVISTA KORJAUKSISTA: *LVIS-hankkeen toteutus *Huoneistokohtaisten palovaroittimien asennus *Mahdollinen lämmitysmuodon muutos maalämpöjärjestelmään *Piha-alueiden kunnostus *Alkuperäisten julkisivujen kuntotutkimus - PÄÄTETYT KORJAUKSET: 23.6.2025 pidetty ylimääräinen yhtiökokous päätti LVIS-hankkeen toteutuksesta esitetyn mukaisesti. Hankkeen kokonaiskustannusarvio 3 096 000 € (kertamaksu 115,31 € / osakeluku ja ensimmäisen vuoden pääomavastike laina ajasta riippuen 0,67 - 0, 77 € / osakeluku / kk). Hankesisältö rahoituksineen on esitelty yksityiskohtaisemmin isännöitsijäntodistuksen liitteenä olevalla ylimääräisellä yhtiökokouskutsulla. Hallitus on kutsunut koolle ylimääräisen yhtiökokouksen 25.11.2025 päättämään LVIS-hankkeen rahoituksen laina-ajasta (20/25 vuotta), kesäkuussa pidetyn yhtiökokouspäätöksen mukaisesti. YLEISAIKATAULU: Tämän asunnon kohdalla aikataulu 17.8.2026-20.11.2026. LVIS-hankkeen rahoitus: Tämän asunnon kohdalla kustannusarvio ko. asunnolle on 37 936,99 euroa. KORJAUSTEN AIKANA ASUMINEN: Asunnoissa saa asua korjaustöiden aikana. Kannattaa kuitenkin huomioida, että pölyltä ja meteliltä ei vältytä ja asumisen haitta on merkittävä. Työn alla olevissa asunnoissa wc -ja suihkutilat, sekä keittiö ovat poissa käytöstä. Asukkaiden käytössä on väistötilana toimivat wc -ja suihkutilat taloyhtiön saunatiloissa. Häiriöistä veden ja sähkön jakelussa pyrimme tiedottamaan mahdollisimman aikaisin. Vesi- ja sähkökatkoja ilmenee remontin aikana myös huoneistoissa, jotka eivät ole työnalla. Työn alla olevissa asunnoissa veden ja sähkön jakelu on katkaistu. Jääkaappien ja pakastimien toimintaa on tärkeää seurata päivittäin, silloin kun asunnon työt eivät ole käynnissä.
Asuinhuoneistoja
72
Lisätietoja taloyhtiöstä
Parvekelasit asunto-osakeyhtiön vastuulla. Yhtiö vastaa Oraksen perustason hanoista sekä ldon perustason wc-istuimesta.
Lunastusoikeus yhtiöllä
Ei
Lunastusoikeus osakkailla
Ei
Kiinteistönhoidosta vastaa
Huoltoyhtiö
Lisätietoja kiinteistönhoidosta
Turun Tehohuolto Oy.
Isännöitsijätoimisto
Isännöinti Granberg
Isännöitsijän nimi
Titta Granberg

Paikallistiedot
Sijainti on erinomainen – luonto ja palvelut ovat lähellä. Länsikeskus löytyy noin 2 km:n päästä, kauppakeskus Mylly noin 3 km:n päästä ja kauppatori noin 5,5 km:n etäisyydeltä.
Palvelut
K-Market Nättäri 2,20 km. Prisma Länsikeskus 2,11 km. K-Citymarket Länsikeskus 2,53 km. Turun kaupunki - Teräsrautelan esteetön kuntorata 1,45 km.
Koulut
Turun kaupunki - Luolavuoren koulu 4,41 km. Teräsrautelan koulu 2,77 km.
Päiväkoti
Touhula Leikki Oy - Touhula Nättinummi Turku 1,08 km.
Liikenneyhteydet
Bussipysäkki lähellä, hyvät pyöräilytiet, hyvä kulkuyhteys ja sujuvat yhteydet omalla autolla

Myyntihinta
79 000,00 €
Velaton myyntihinta
79 000 €
Neliöhinta
1 645,83 €/m²
Hoitovastike
181,92 €
Yhtiövastike yht.
181,92 €
Vesimaksu
35 € / hlö / kk
Lisätietoja maksuista
*Hoitovastike: 181,92€/kk. *Vesi: Vesivastike 35,00€/hlö/kk. Perustuu henkilömäärään. *Sähkö: Sisältyy vastikkeeseen. *Ostajalle kaupan yhteydessä tulevia kuluja: *Varainsiirtovero 1,5% velattomasta kauppahinnasta. *Taloyhtiön osakeluettelo on ennen kaupantekoa siirretty huoneistotietojärjestelmään, ostajan tulee hakea omistusoikeuden rekisteröintiä Maanmittauslaitokselta. Ostaja vastaa omistusoikeuden rekisteröintikustannuksista, mahdollisista osakekirjan mitätöinnistä aiheutuvista kustannuksista.
Takaisin hakuun