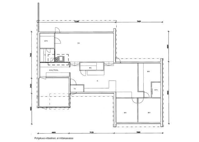
182 m², 5h+k+wc+wc/kph+kph+s+khh+et+at+v

Taimo
Koivukatu 3, 21110 Naantali
Omakotitalo, 1973

182 m²
5h+k+wc+wc/kph+kph+s+khh+et+at+v

Mh. 319 000 €
Vh. 319 000 €

Koivukatu 3, 21110 Naantali

Naantalin Taimon arvostetulla ja rauhallisella asuinalueella sijaitsee tämä persoonallinen ja lämminhenkinen omakotitalo, joka tarjoaa laadukasta asumista vuosiksi eteenpäin. Vuonna 1973 rakennettu talo on kokenut laajat ja huolellisesti toteutetut saneeraukset vuonna 2010, jolloin uusittiin kaikki sisäpinnat, katto, sähköt johdotuksineen, käyttövesiputket, ilmanvaihtokone sekä asennettiin maalämpö ja vesikiertoinen lattialämmitys koko taloon. Vuonna 2020 on tehty merkittävä valesokkelirakenteen korjaus kengittämällä sekä uusittu salaojat ja hulevesiliittymä. Samalla talon länsipäädyn makuuhuoneiden pinnat on päivitetty ja kylpyhuone/wc remontoitu.

Talo hurmaa valoisalla ja avaralla olohuoneella, jossa kauniit ruutuikkunat tuovat eleganttia ilmettä. Kolme makuuhuonetta, ruokailutila keittiön jatkeena, erillinen wc, kylpyhuone ja saunaosasto sekä käytännöllinen kodinhoitohuone tarjoavat toimivat puitteet perheen arkeen. Lisäksi on autotalli sekä erillinen kesähuone, joka sopii loistavasti esimerkiksi etätyötilaksi tai vierasmajoitukseen.

Oma 675 m²:n tontti rajautuu puistoalueeseen, mikä tuo yksityisyyttä ja viihtyisyyttä pihapiiriin. Takapihan laajat terassit ja poreallas luovat täydelliset puitteet rentoutumiseen ja vapaa-ajan viettoon – pihalla on myös kivasti tilaa oleskelulle ja puutarhanhoidolle.

Taimon asuinalue tunnetaan rauhallisuudestaan, luonnonläheisyydestään sekä hyvistä palveluista. Alueelta löytyy päiväkoteja, kouluja, ulkoilureittejä ja arjen palveluita kätevien etäisyyksien päästä. Naantalin keskustan ja merenrannan palvelut ovat vain lyhyen matkan päässä.

Tämä koti tarjoaa huolettoman ja laadukkaan asumisen yhdistettynä kauniiseen ympäristöön – tervetuloa tutustumaan, tämä talo täytyy nähdä paikan päällä!

Yhteydenotot: Mika Kulmala, 040 7799 548, mika.kulmala@huoneistomarkkinat.com

Sijainti
Naantali, Taimo, Koivukatu 3, 21110
Tilat
5h+k+wc+wc/kph+kph+s+khh+et+at+v
Asuintilojen pinta-ala
182 m²
Kokonaispinta-ala
182 m²
Pinta-ala on tarkistusmitattu
Ei
Kerros
1 / 1
Lisätietoja pinta-alasta
Rakennuslupa-asiakirjojen mukaan asuinrakennuksen kerrosala on noin 182 m². Ostaja on tietoinen, että asuinpinta-alaa ja houneisto-alaa ei ole määritelty. Lisäksi on pihavarasto, jonka kerrosala on rakennuslupa-asiakirjojen mukaan noin 10,5 m². Ei tarkistusmitattu. Pinta-alat saattavat tämän ikäisissä kohteissa (rekisteröity ennen 01.01.1992) poiketa olennaisestikin asuinrakennusten nykyisten mittaustapojen ja standardien (SFS 5139) mukaan laskettavasta asuintilojen pinta-alasta. Pinta-ala voi siis olla edellä mainittua pienempi tai suurempi.
Vapautuminen
Sopimuksen mukaan
Yleiskunto
Hyvä
Keittiön kuvaus
Keittiö uusittu 2010, Kvikin keittiö, Mano-sarjan XXL-laatikostot, Nero-sarjan kaapistot, työtasot tammea.
Keittiön varustus
Jääkaappi, erillinen pakastin, erillisuuni, liesi, liesituuletin, mikroaaltouuni ja astianpesukone
Keittiön liesi
Induktioliesi
Keittiön lattiamateriaalit
Kaakeli
Pesutilojen kuvaus
Saunan yhteydessä oleva kylpyhuone uusittu 2010. Toinen kylpyhuone uusittu 2020.
Pesutilojen varustus
Suihku, suihkuseinä, allaskaappi, pesuallas, peili ja lattialämmitys
Pesutilojen lattiamateriaalit
Laatta
Pesutilojen seinämateriaalit
Kaakeli
Asunnossa sauna
Kyllä
Saunan lisätiedot
Sauna uusittu 2010
Saunan varustus
Puukiuas
Kodinhoitohuoneen kuvaus
Uusittu 2010
Kodinhoitohuoneen lattiamateriaalit
Laatta
Kodinhoitohuoneen varustus
Pesukoneliitäntä, lattialämmitys, pyykkikaapit ja tila pesutornille
Olohuoneen kuvaus
Olohuoneen pinnat uusittu 2010
Olohuoneen lattiamateriaalit
Parketti
Makuuhuoneen kuvaus
Makuuhuoneissa kahdessa on laminaatti lattia ja yhdessä parketti.
Makuuhuoneen lattiamateriaalit
Laminaatti ja parketti
Muiden tilojen kuvaus
Terassilla poreallas ja takapihalla kesähuone.
Takkatiedot
Takka
Terassi
Kyllä
Säilytystilat
Lämmin ulkovarasto ja kaapistot

Kunta/kaupunki
Naantali
Kaupunginosa/kylä
Taimo
Kiinteistötunnus
529-17-4-3
Rakennusvuosi
1973
Käyttöönottovuosi
1973
Tontin pinta-ala
675 m²
Tontin omistus
Oma
Rakennusoikeus
300 m²
Kaavoitus
Asemakaava
Lisätietoja kaavoituksesta
Naantalin kaupunki
Rakennus- ja pintamateriaalit
Puu ja tiiliverhoilu
Kattotyyppi
Harjakatto
Katemateriaali
Pelti
Lämmitysjärjestelmä
Maalämpö
Ilmanvaihto
Koneellinen LTO
Vesijohto
Kunnallisvesi
Viemäröinti
Kunnallinen viemäriverkosto
Energiatodistus
Kyllä
Energialuokka
C2018
Asbestikartoitus
Ei
Suoritetut korjaukset
2024 Ilmanvaihtokanavat nuohottu. 2022 Julkisivun puuosat huoltomaalattu. 2020 Talon länsipäädyn valesokkelin korjaus. Viemäriputki uusittu kaupungin ja kiinteistön välillä. Maalämpöpumpun huolto. Salaojien asennus sekä maanpintojen muokkaukset. Hulevesiverkosto. Pesuhuone / Wc uusinta talon länsi päädyssä. 2010 Laaja saneeraus koko talossa (Kaikki vedeneristeet ja pinnat uusittu myös saunassa, Kaikkien wc kalusteet uusittu -kuten kylppärikin, Asennettu keraaminen hormisto, Vesikiertoinen lattialämmitys asennettu kauttaaltaan, Maalämpö, Käyttövesiputkistot uusittu komposiitti-putkilla, Sähköt uusittu johdotuksineen, Ilmanvaihtokone uusittu, Katto uusittu ja taustarakenteet tarkastettu.

Koulut
Taimon koulu kävely etäisyydellä.
Päiväkoti
Taimon päiväkoti kävely etäisyydellä.
Liikenneyhteydet
Sujuvat yhteydet omalla autolla, hyvät pyöräilytiet ja bussipysäkki lähellä
Lisätietoja liikenneyhteyksistä
Lisätietoja Föli.fi

Myyntihinta
319 000,00 €
Velaton myyntihinta
319 000 €
Neliöhinta
1 752,75 €/m²
Kiinteistövero
316,71 € / vuosi
Lisätietoja maksuista
Vesi kulutuksen mukaisesti, Sähkö kulutuksen mukaisesti, nykyisillä omistajilla sähkön kulutus ollut noin 20.000 kWh/vuosi (sisältäen käyttösähkön, porealtaan sekä sähköauton latausta).
Takaisin hakuun