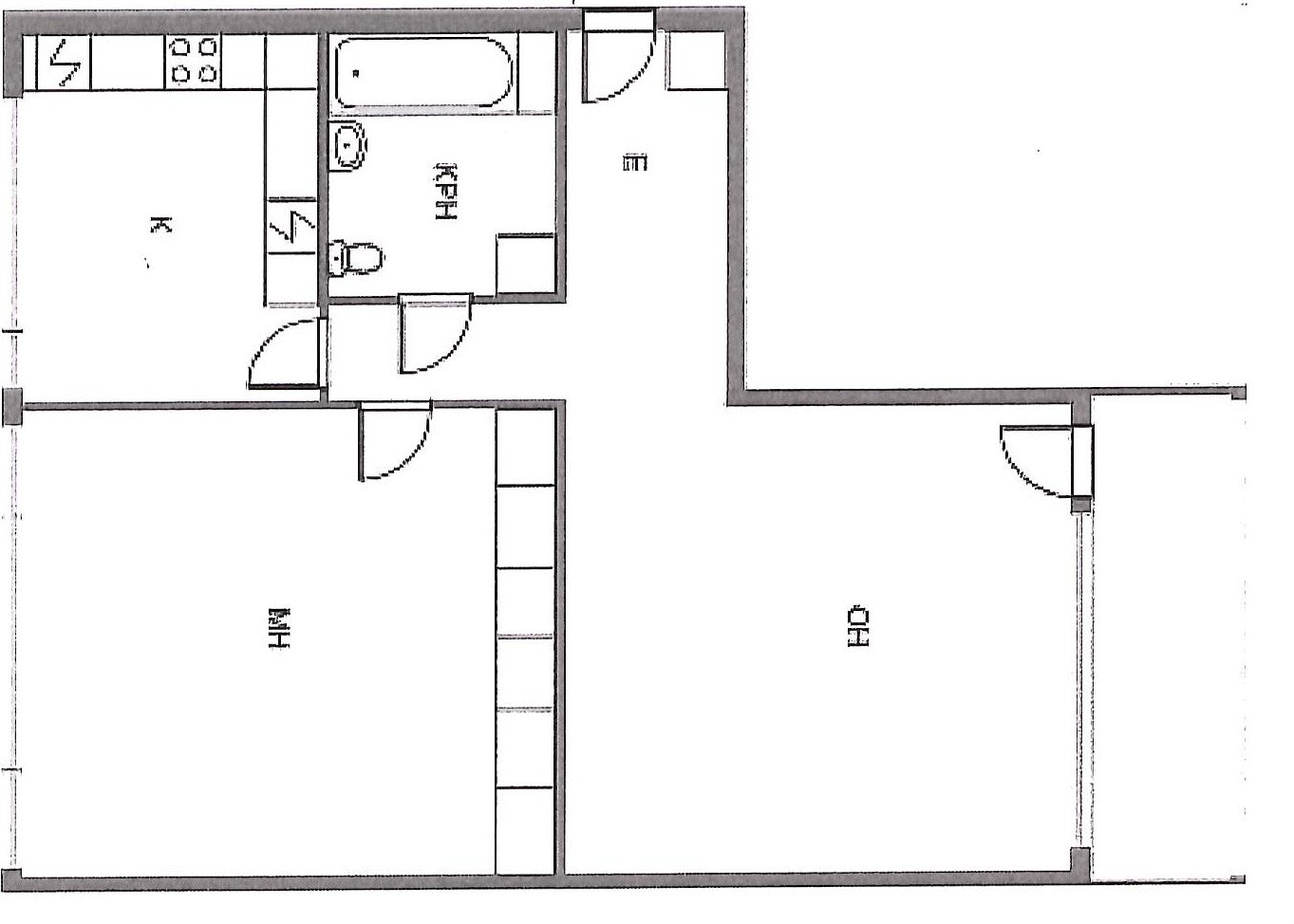
61 m², 2h+k+ph/wc+lasit.p

Runosmäki
Majoitusmestarinkatu 3 E, 20360 Turku
Kerrostalo, 1970

61 m²
2h+k+ph/wc+lasit.p

Mh. 56 418 €
Vh. 65 000 €

Majoitusmestarinkatu 3 E, 20360 Turku

Tervetuloa tutustumaan tähän tilavaan kaksioon Turun Runosmäessä. Toimivapohjainen huoneisto sijaitsee hissittömän talon toisessa kerroksessa.

Asunnossa on selkeä huonejärjestys: erillinen keittiö tarjoaa tilaa ruoanlaittoon ja ruokailuun, ja olohuone toimii viihtyisänä oleskelutilana omassa rauhassaan. Makuuhuone on reilun kokoinen ja säilytystilaa löytyy hyvin vaatekaapeista. Asuntoon pääset muutamaan heti.

Taloyhtiö, As Oy Nunnanniitty, on huolella hoidettu yhtiö. Sijainti tarjoaa hyvät kulkuyhteydet keskustaan, ja lähialueen palvelut sekä ulkoilumahdollisuudet löytyvät aivan läheltä.

Lisätiedot & esittelyt:
Johanna Johansson 040 7799 510 johanna.johansson@huoneistomarkkinat.com

Sijainti
Turku, Runosmäki, Majoitusmestarinkatu 3, 20360
Tilat
2h+k+ph/wc+lasit.p
Asuintilojen pinta-ala
61 m²
Kokonaispinta-ala
61 m²
Pinta-alan peruste
Yhtiöjärjestyksen mukainen ja isännöitsijäntodistuksen mukainen
Kerros
2 / 3
Yleiskunto
Tyydyttävä
Keittiön varustus
Jääkaappipakastin ja liesi
Keittiön lattiamateriaalit
Muovimatto
Keittiön seinämateriaalit
Maali ja tapetti
Pesutilojen varustus
WC-istuin, kylpyamme, pesuallas, suihku, pesukoneliitäntä, peili ja sähköpatteri
Pesutilojen lattiamateriaalit
Muovimatto
Pesutilojen seinämateriaalit
Kaakeli ja maali
Olohuoneen lattiamateriaalit
Muovimatto
Olohuoneen seinämateriaalit
Tapetti
Makuuhuoneen lattiamateriaalit
Muovimatto
Makuuhuoneen seinämateriaalit
Tapetti
Takkatiedot
Ei takkaa
Parveke
Kyllä
Parvekkeen tyyppi
Lasitettu
Parvekkeen ilmansuunta
Itä
Terassi
Ei
Säilytystilat
Kaapistot

Taloyhtiön nimi
Asunto Oy Nunnanniitty
Kunta/kaupunki
Turku
Kaupunginosa/kylä
Runosmäki
Kiinteistötunnus
853-85-4-2
Rakennusvuosi
1970
Tontin pinta-ala
4582 m²
Tontin omistus
Oma
Taloyhtiössä sauna
Kyllä
Taloyhtiössä on
Kellarikomero
Kaavoitus
Asemakaava
Rakennus- ja pintamateriaalit
Betoni
Kattotyyppi
Tasakatto
Katemateriaali
Huopa
Lämmitysjärjestelmä
Maalämpö
Ilmanvaihto
Koneellinen poisto
Vesijohto
Kunnallisvesi
Viemäröinti
Kunnallinen viemäriverkosto
Piha-autopaikat
44
Energiatodistus
Kyllä
Energialuokka
C2018
Asbestikartoitus
Ei
Suoritetut korjaukset
1992 Ikkunat uusittu (ei parvekkeet) 1993 Lämmönsiirrin uusittu + lämpökanaali kunnostettu 2001 Kiinteistön kuntoarvio 2001-2006 Vesikatot uusittu 2007 Parvekeovet ja -ikkunat uusittu 2008 Saunaosastot uusittu 2010 Julkisivukorjaushankkeen suunnittelu 2010 Putkistojen kuntokartoitus 2012 Julkisivukorjaushanke 2012 Salaojat uusittu 2012 Pihasuunnitelma ja toteutus 2015 Lukitusjärjestelmän uusiminen (Abloy Sento) 2018 Käyttövesiputkien uusinta 2021 Pikkuvessojen vanhojen WC-istuinten vaihto 2021-2022 Ilmanvaihtokoneiden uusinta 2023 Maalämmön asennus 2024 Kameravalvonta pyörävarastoon 2024 Autokatoksen talon puoleisen osan asfaltointi ja peltikatoksen uusiminen
Suunnitellut korjaukset
Selvitys korjaustarpeesta: Kunnostustoimenpiteen ajankohtaisuus yli 10 vuotta = 1 4-10 vuotta = 2 1-4 vuotta = 3 0-1 vuotta = 4 Viemäriremontti 2 Lämmitysverkoston venttiilien vaihto ja tasapainotus 4 Ikkunaremontti 2 Kattoremontti 1
Asuinhuoneistoja
62
Lunastusoikeus yhtiöllä
Ei
Lunastusoikeus osakkailla
Ei
Kiinteistönhoidosta vastaa
Huoltoyhtiö
Lisätietoja kiinteistönhoidosta
Akseli Kiinteistöpalvelut Oy
Isännöitsijätoimisto
PL-Isännöinti Oy
Isännöitsijän nimi
Pasi Leppänen

Myyntihinta
56 417,80 €
Velaton myyntihinta
65 000 €
Velkaosuus
8 582,20 €
Neliöhinta
1 065,57 €/m²
Hoitovastike
286 €
Rahoitusvastike
68,64 €
Yhtiövastike yht.
354,64 €
Vesimaksu
Kulutuksen mukaan
Takaisin hakuun