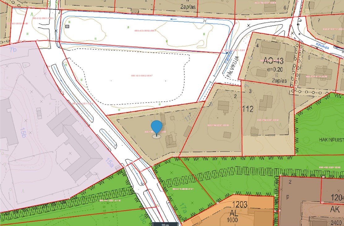
Pälvikuja 11, 21210 Raisio Omakotitalotontti

Tikanmaa
Pälvikuja 11, 21210 Raisio
Omakotitalotontti

Mh. 35 000 €
Vh. 35 000 €

Pälvikuja 11, 21210 Raisio

LOISTAVA TILAISUUS UUDEN KODIN RAKENTAMISEEN

Tämä 2 392 m²:n tontti tarjoaa hyvän mahdollisuuden rakentaa koti juuri perheesi tarpeisiin luonnonläheiselle alueelle!

TILAA, RAUHAA JA MAHDOLLISUUKSIA

Tontilla sijaitsee purkukuntoinen omakotitalo sekä talousrakennus. Talossa ei ole asuttu vuosiin, ja purkukustannukset on huomioitu hinnassa.

Asemakaavamääräysten mukaan rakennusoikeuden enimmäismäärä on 300 m². Tontille saadaan rakentaa tontille osoitetun rakennusoikeuden lisäksi erilinen, kerrosalaltaan enintään 50 m² suuruinen talousrakennus autosuojaa, varastoa tai teknisiä tiloja varten.

Sijainti on erityisen toimiva lapsiperheille: Tikanmaan koulu ja Hakinmäen päiväkoti ovat aivan lähietäisyydellä. Raision keskustan monipuoliset palvelut ovat noin 3,5 kilometrin päässä ja helposti saavutettavissa autolla tai julkisilla. Bussipysäkit Raisiontien ja Kallastenkadun varrella takaavat sujuvat yhteydet eri suuntiin.

UUSI KOTI ALKAA TÄSTÄ

Tartu tilaisuuteen ja toteuta koti, joka vastaa perheesi tarpeita nyt ja tulevaisuudessa.
Rauhallinen sijainti, luonnonläheinen ympäristö ja hyvät yhteydet Raision keskustaan tekevät tästä tontista erinomaisen paikan uuden kodin rakentamiseen.

Myynti ja lisätiedot:
Susanna Ojala, 040 779 9507, susanna.ojala@huoneistomarkkinat.com
Rani Lohi, 040 779 9511, rani.lohi@huoneistomarkkinat.com

Sijainti
Raisio, Tikanmaa, Pälvikuja 11, 21210
Vapautuminen
Sopimuksen mukaan
Yleiskunto
Välttävä
Lisätietoja kunnosta
Kiinteistöllä sijaitsee purkukuntoinen omakotitalo ja talousrakennus. Rakennuksilla ei ole kaupassa rahallista arvoa, vaan hinta perustuu ainoastaan tontin arvoon huomioiden purkukulut.

Kunta/kaupunki
Raisio
Kaupunginosa/kylä
Tikanmaa
Kiinteistötunnus
680-433-2-23
Tontin pinta-ala
2392 m²
Tontin omistus
Oma
Rakennusoikeus
300 m²
Kaavoitus
Asemakaava
Lisätietoja kaavoituksesta
Raision kaupunki.
Energiatodistus
Kohteella ei energiatodistuslain nojalla tarvitse olla energiatodistusta
Asbestikartoitus
Ei
Suoritetut korjaukset
Kiinteistöllä sijaitsee purkukuntoinen omakotitalo ja talousrakennus. Rakennuksilla ei ole kaupassa rahallista arvoa, vaan hinta perustuu ainoastaan tontin arvoon huomioiden purkukulut.

Palvelut
Raision keskustan palvelut noin 3,5 kilometrin etäisyydellä.
Koulut
Tikanmaan koulu (ala-aste) alle 100 metrin etäisyydellä, ylä-aste ja toisen asteen oppilaitokset Raision keskustan ympäristössä.
Päiväkoti
Hakinmäen päiväkoti alle 100 metrin etäisyydellä.
Lisätietoja liikenneyhteyksistä
Erittäin hyvät, bussipysäkit Raisiontien ja Kallastenkadun varressa.

Myyntihinta
35 000,00 €
Velaton myyntihinta
35 000 €
Neliöhinta
14,63 €/m²
Kiinteistövero
435,19 € / vuosi
Takaisin hakuun