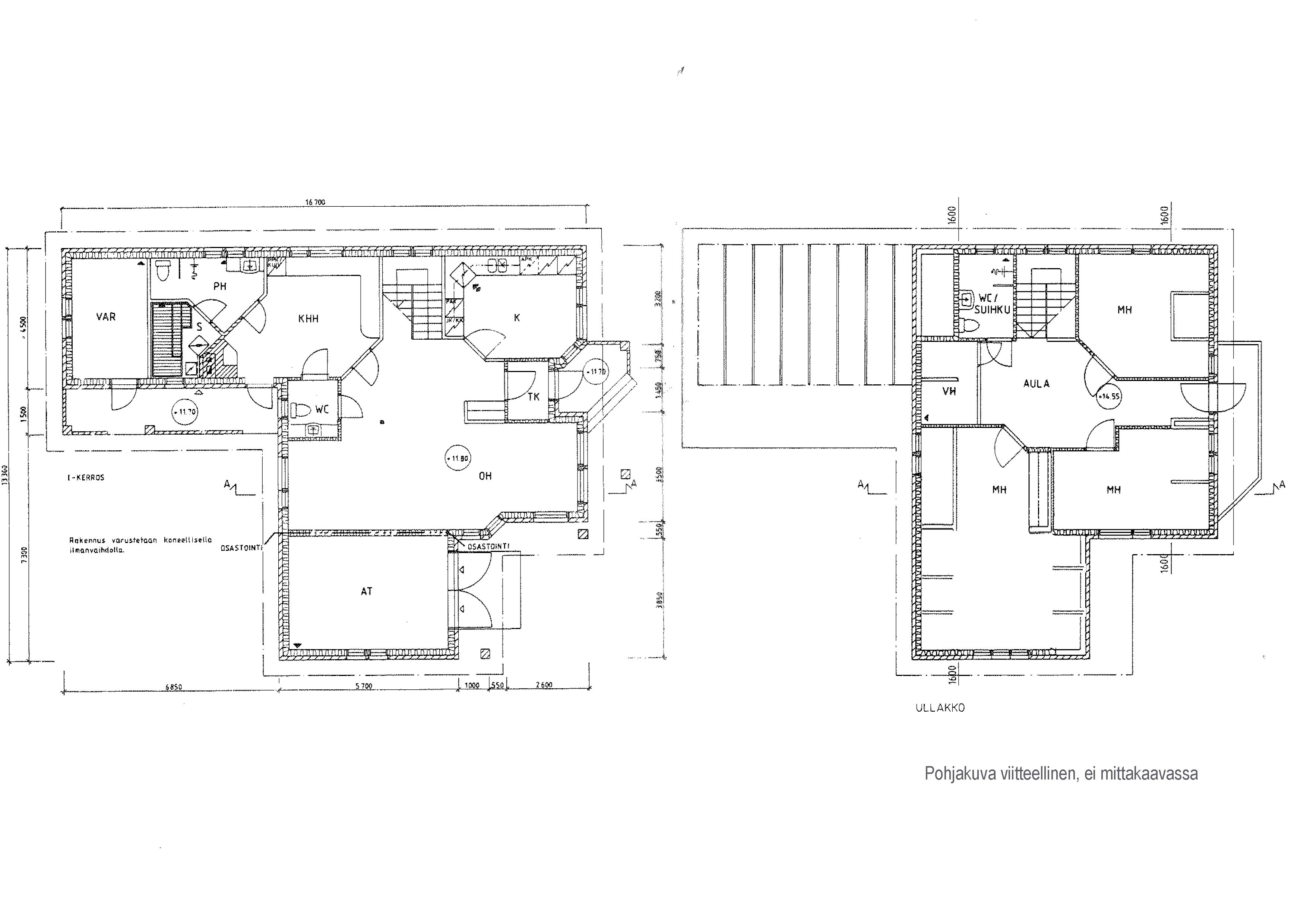
167 m², Ak: oh+k+aula+khh/th+kph/s+erillinen wc Yk: 3mh+kph/wc+vh+aula+lasitettu parveke

Hirvensalo, Moikoinen
Pitkäsalmenkatu 7, 20900 Turku
Omakotitalo, 1990

167 m²
Ak: oh+k+aula+khh/th+kph/s+erillinen wc Yk: 3mh+kph/wc+vh+aula+lasitettu parveke

Mh. 249 500 €
Vh. 249 500 €

Pitkäsalmenkatu 7, 20900 Turku

LUONNON RAUHAA JA MEREN LÄHEISYYTTÄ MOIKOISISSA – IHANTEELLINEN KOTI LAPSIPERHEELLE

Tervetuloa Hirvensaloon- rauhalliselle ja luonnonläheiselle halutulle Moikoisten asuinalueelle, aivan meren tuntumaan!

Tämä vuonna 1990 rakennettu kaksikerroksinen omakotitalo tarjoaa perheelle toimivat ja käytännölliset puitteet sujuvaan arkeen. Kolme makuuhuonetta sekä yläkerran avara aulatila tuovat joustavuutta tilojen käyttöön. Olohuoneen varaava takka luo lämpöä ja tunnelmaa, ja käytännöllinen kodinhoitohuone helpottaa arjen sujumista.

Talo on perustettu tukevasti betonipaaluilla kallioon. Lämmitys tapahtuu sähköllä, ja lämpö jakautuu tehokkaasti sähköpattereilla, lattialämmityksellä, kattolämmityselementeillä sekä ilmalämpöpumpulla. Ilmanvaihto on toteutettu koneellisella poistolla.

Kiinteistöön on tehty kuntokartoitus ja rakennus kaipaa tietyiltä osin peruskorjaamista.

Etupihalla on tilaa autoille, ja suojaisa, vehreä takapiha tarjoaa rauhallisen ja viihtyisän paikan oleskelulle. Tontti rajautuu kaupungin puistoalueeseen, mikä tuo luonnonläheisyyttä ja lisää yksityisyyttä.

Lähiympäristössä kulkevat metsäreitit ja ulkoilumaastot ja ennen kaikkea meren läheisyys luo alueelle ainutlaatuisen tunnelman: rantamaisemat, venepaikat ja uimapaikat ovat kaikki lähellä. Muutaman sadan metrin päästä Moikoisten uimaranta ja lähietäisyydellä myös Hirvensalon Golfkenttä.

ERINOMAISET PALVELUT JA SUJUVAT YHTEYDET

Moikoisista on sujuvat yhteydet niin Turun keskustaan kuin Hirvensalon kattaviin palveluihin. Alueelta löytyvät useat päiväkodit ja koulut, neuvola, apteekki, kirjasto sekä liikunta- ja harrastustilat. Bussipysäkit ovat aivan lähistöllä ja julkinen liikenne kulkee vaivattomasti.

Tämä koti odottaa uutta perhettä, joka arvostaa luonnon rauhaa, merellistä ympäristöä ja arjen sujuvuutta.

Päivitä tästä teidän näköinen unelmakoti Hirvensalon halutulla asuinalueella!

Lisätiedot ja esittelyt:
Marko Karppinen / 040-7799502 / marko.karppinen@huoneistomarkkinat.com
Susanna Ojala / 040-7799507 / susanna.ojala@huoneistomarkkinat.com

Sijainti
Turku, Hirvensalo, Moikoinen, Pitkäsalmenkatu 7, 20900
Tilat
Ak: oh+k+aula+khh/th+kph/s+erillinen wc Yk: 3mh+kph/wc+vh+aula+lasitettu parveke
Asuintilojen pinta-ala
167 m²
Kokonaispinta-ala
167 m²
Pinta-ala on tarkistusmitattu
Ei
Kerros
2 / 2
Lisätietoja pinta-alasta
Rakennuslupa-asiakirjojen mukaan kerrosala: I-kerros 143 m2 + ullakko 91 m2, sisältää taloustiloja 40 m2, yhteensä 234 m2. Kaupungilta saadun rakennus- ja huoneistorekisteriotteen mukaan asuinhuoneistoala on 167 m² ja käytetty kerrosala 213 m². Asuinpinta-alaa ei ole määritelty, kauppaa ei tehdä pinta-ala perusteisesti.
Lisätietoja vapautumisesta
Sopimuksen mukaan
Yleiskunto
Tyydyttävä
Lisätietoja kunnosta
Kuntotarkastus tehty 25.03.2025 sekä tutkimusselostus 9.4.2025, raportit saa välittäjältä. Kuntokartoituksessa ehkä isoimpana korjaustarpeena todettua: Kohteen ulkoseinät ovat toteutettu valesokkelina, joka vaatii ainakin osittain korjaamista. Ulkopuolinen kosteushallinta todettiin olevan puutteellinen. Eli kiinteistö kaipaa salaojaremontin, jonka yhteydessä suositellaan parantamaan maanpinnankallistuksia, pinta- sekä sadevesien poisohjaamista.
Keittiön varustus
Jääkaappi, erillinen pakastin, liesi, astianpesukone, liesituuletin ja erillisuuni
Keittiön liesi
Induktioliesi
Keittiön lattiamateriaalit
Parketti
Keittiön seinämateriaalit
Lasikuitutapetti
Pesutilojen varustus
Suihku, WC-istuin ja suihkuseinä
Pesutilojen lattiamateriaalit
Laatta
Pesutilojen seinämateriaalit
Kaakeli
Asunnossa sauna
Kyllä
Saunan varustus
Puukiuas ja sähkökiuas
Kodinhoitohuoneen kuvaus
Varustus: Pesukone, kuivausrumpu, pöytätaso, lattialämmitys, kaapissa kiinteä sisään rakennettu silityslauta, kaapissa hylly mankelia varten, kaapissa sähkövalo. Kodinhoitohuoneessa on reilusti kiinteitä kaappeja/ säilytystilaa.
Kodinhoitohuoneen lattiamateriaalit
Laatta
Olohuoneen lattiamateriaalit
Parketti
Olohuoneen seinämateriaalit
Lasikuitutapetti
Makuuhuoneen lattiamateriaalit
Parketti
Makuuhuoneen seinämateriaalit
Tapetti
Muiden tilojen kuvaus
Alakerran ja yläkerran aulan lattia parkettia. Tuulikaapin lattiassa laattaa, lisäksi lattialämmitys.
Takkatiedot
Varaava takka
Parveke
Kyllä
Parvekkeen tyyppi
Lasitettu
Parvekkeen ilmansuunta
Itä
Säilytystilat
Kaapistot, vaatehuone, lämmin ulkovarasto ja talouskellari
Lisätietoja säilytystiloista
Talouskellariin käynti keittiön kautta.
Kauppaan ei kuulu
Irtaimisto.

Kunta/kaupunki
Turku
Kaupunginosa/kylä
Hirvensalo, Moikoinen
Kiinteistötunnus
853-51-47-3-L1
Rakennusvuosi
1990
Käyttöönottovuosi
1991
Tontin pinta-ala
600 m²
Tontin omistus
Vuokra
Maanvuokraaja
Turun kaupunki
Tontin vuosivuokra
386,37 €
Tontin vuokra-aika päättyy
31. joulukuuta 2035
Lisätietoja tontista
Turun kaupungilta saadun tiedon mukaan kyseisen tontin lunastushinnan selvittämiseksi on tilattava arviokirja. Turun kaupunki tilaa arviokirjan vuokraoikeuden haltijan ostoanomuksesta. Alustavan arvion mukaan lunastushinta saattaisi olla noin 65 000 € – 90 000 €.
Rakennusoikeus
240 m²
Kaavoitus
Asemakaava
Lisätietoja kaavoituksesta
Turun kaupunki.
Rakennus- ja pintamateriaalit
Puu ja tiiliverhoilu
Kattotyyppi
Harjakatto
Katemateriaali
Tiili
Lämmitysjärjestelmä
Sähkö
Ilmanvaihto
Koneellinen poistoilmanvaihto
Vesijohto
Kunnallisvesi
Viemäröinti
Kunnallinen viemäriverkosto
Energiatodistus
Kyllä
Energialuokka
E2018
Asbestikartoitus
Ei
Suoritetut korjaukset
Huollot, korjaukset ja uusimiset perustuvat omistajan laatimaan muistioon sekä kuntotarkastusraportin haastatteluosion kautta saatuihin tietoihin: Rakenteet ja rakenneosat: *10/2025: Talouskellarin kaivon pumppu uusittu tehokkaammalla pumpulla ja kaivo varustettu vedenpinnan tason varoitusjärjestelmällä, jota kuntotarkastuksessa (25.3.2025) suositeltiin. *2024: Savupiippujen nuohous (nuohous tehty säännöllisesti, viimeksi 30.10.2024). *2023: Kattopaneelien huoltotarkastus. *2022/2023: Ulkokaton tiilien puhdistus ja pinnoitteen/ suoja-aineen ruiskutus. *2015-2020: Ulko-ovien 2 kappaletta vaihto. *2013: Ikkunapeltien osittainen pellitysten uusiminen, ikkunoiden osittainen huoltomaalaus (osa ikkunoista pellitetty). *2013: Puuosien huoltomaalaukset. *2010: Parvekkeen uudelleen rakentaminen ja lasittaminen. Märkätilat ja kosteat tilat: *2019: Pesuhuone ja sauna: Saunan lauteet ja sähkökiuas uusittu, hana uusittu lavuaarissa ja suihkun johto/pidike uusittu. *2019: WC-tilat: WC-istuimet vaihdettu (alakerran ja yläkerran wc), wc:n hana vaihdettu alakerran erillisessä wc:ssä ja pesuhuoneessa (saunan yhteydessä). Keittiö: *2023: Keittiöhana, lavuaarin alla olevat vesijohdot/ putket vaihdettu. *2016: Osittain keittiö: Induktioliesi, laminaattipöytälevyt, roiskesuojat lavuaarin ja pöytäpintojen takana, teräksinen pesuallas/ lavuaari uusittu. *2008: Pakastin ja jääkaappi uusittu, astianpesukone uusittu. Lämmitysjärjestelmä: *11/2025: Ilmalämpöpumpun vuosihuolto/puhdistus talon sisätilassa sekä ulkopuolinen osa. *2024: Takan nuohous (nuohous suoritettu säännöllisesti, viimeksi 30.10.2024). *2023: Ilmalämpöpumpun huolto. *2023: Termostaatit uusittu takkahuoneessa, alakerran WC:ssä, sauna/pesutilassa ja yläkerran WC:ssä. *2009: Ilmalämpöpumpun asennus. Vesi-ja viemärijärjestelmä/-laitteisto: 04/2025: Viemäriputkien kuvaus suoritettu (ei suoritettu puhdistusta). *2023: Keittiön ja WC:den hanat vaihdettu (ei yläkerrassa eikä takkahuoneessa). *2021: Lämminvesivaraaja. *2019/2020: Viemäriputkia kuvattu ja puhdistettu. Ilmanvaihtojärjestelmä: *11/2025: Ilmanvaihtokanavien puhdistus/nuohous, joka sisälsi mm. uusien suodattimien vaihdon. *2013/ 2018: Ilmanvaihtokanavien puhdistus.

Paikallistiedot
Moikoisista on sujuvat yhteydet niin Turun keskustaan kuin Hirvensalon kattaviin palveluihin. Bussipysäkit ovat aivan lähistöllä ja julkinen liikenne kulkee vaivattomasti.
Palvelut
Alueelta löytyvät useat päiväkodit ja koulut, neuvola, apteekki, kirjasto sekä liikunta- ja harrastustilat.
Liikenneyhteydet
Sujuvat yhteydet omalla autolla ja hyvä kulkuyhteys
Piha
Etupihalla on tilaa autoille, ja suojaisa, vehreä takapiha tarjoaa rauhallisen ja viihtyisän paikan oleskelulle.

Myyntihinta
249 500,00 €
Velaton myyntihinta
249 500 €
Neliöhinta
1 494,01 €/m²
Lisätietoja maksuista
*Sähkö: Oman kulutuksen ja sopimuksen mukaan. Sähkönkulutus on kuitenkin aina riippuvainen omasta sähkösopimuksesta, asunnossa asuvien määrästä, kulutus- ja asumistavoista. *Vesi: Oman kulutuksen ja Turun kaupungin hinnaston mukaan. *Jätehuolto: Jätehuollon kustannus riippuu jätehuoltosopimuksesta, jäteastian määrästä sekä tyhjennysvälistä. *Kiinteistövero: 767,88e/ vuosi. *Tontin vuosivuokra: 386,37e. Ostajalle kaupanteon yhteydessä tulevia maksuja: *Varainsiirtovero: Ostaja maksaa lain mukaisen varainsiirtoveron 3% kauppahinnasta. *Ostajan pankki voi mahdollisesti laskuttaa ostajalta lainan noston tai panttikirjojen siirron yhteydessä syntyviä kuluja pankin hinnaston mukaisesti, lisätiedot omasta pankista. *Panttikirjat luovutetaan ostajalle velattomina kauppahinnan maksua vastaan.
Takaisin hakuun