161 m² / 206.5 m², 6h+2k+2wc+kph+s+at+v

Loukinainen
Piilipuunkuja 9, 21410 Lieto
Omakotitalo, 1972

161 m² / 206.5 m²
6h+2k+2wc+kph+s+at+v

Mh. 79 000 €
Vh. 79 000 €

Piilipuunkuja 9, 21410 Lieto

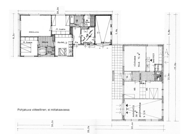
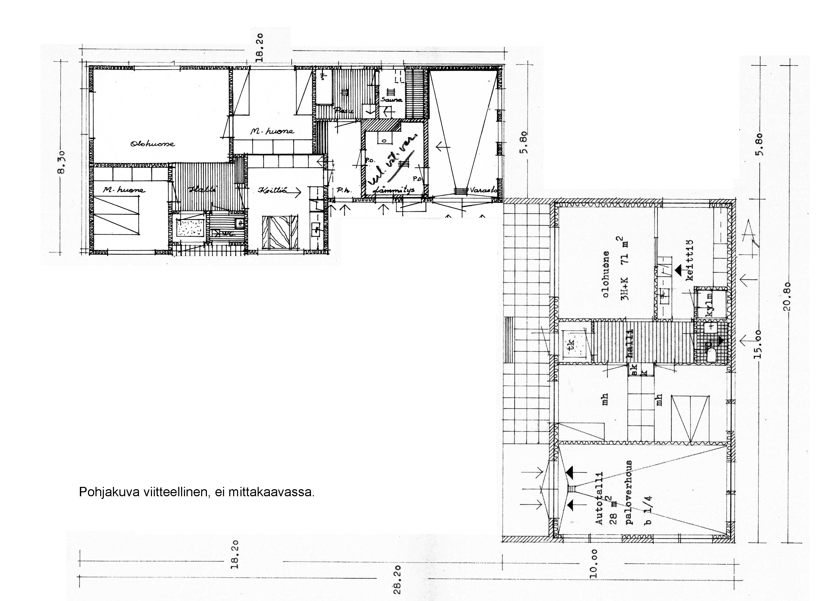
Kiinteistöllä sijaitsee kaksi omakotitaloa / paritalo omalla 2 465 m² tontilla. Molemmat rakennukset ovat kokonaan saneerattavia.

Ensimmäisen talon rakentaminen on alkanut vuonna 1964, ja sen kerrosala on noin 132 m². Talossa on kaksi makuuhuonetta, olohuone, keittiö, wc, kylpyhuone, sauna, takkahuone ja varasto.

Toinen talo on valmistunut 1970-luvun loppupuolella, ja sen kerrosala on noin 150 m². Talossa on kaksi makuuhuonetta, olohuone, keittiö, wc ja autotalli.

Kohde sijaitsee Liedon Loukinaisissa lähellä peruspalveluita. Loukinaisten koulu sekä Loukilinnan päiväkoti sijaitsevat noin 300 metrin etäisyydellä. Lähikauppa K-Market Loukinainen löytyy noin 400 metrin päästä.

Kuntotarkastusraportti on saatavilla välittäjältä.

Yhteydenotot: Mika Kulmala, 040 7799 548, mika.kulmala@huoneistomarkkinat.com

Sijainti
Lieto, Loukinainen, Piilipuunkuja 9, 21410
Tilat
6h+2k+2wc+kph+s+at+v
Asuintilojen pinta-ala
161 m²
Muiden tilojen pinta-ala
45,5 m²
Kokonaispinta-ala
206,5 m²
Pinta-ala on tarkistusmitattu
Ei
Kerros
1 / 1
Lisätietoja pinta-alasta
Rakennuslupa-asiakirjojen mukaan 1. Rakennuksen kokonaispinta-ala on noin 107,5 m² ja huoneistoala noin 90 m². 2. Rakennuksen kokonaispinta-ala on noin 99 m² ja huoneistoala noin 71 m². Pinta-aloja ei ole tarkistemitattu ja kauppa ei ole pinta-ala perusteinen.
Vapautuminen
Heti
Yleiskunto
Välttävä
Lisätietoja kunnosta
Kohteen rakennukset ovat huono kuntoisia ja vaativat täyden saneerauksen. Lisätietoja kuntotarkastus raportista, jonka saa välittäjältä.
Keittiön kuvaus
Keittiöt saneerauksen tarpeessa
Pesutilojen kuvaus
Pesutilat saneerauksen tarpeessa
Asunnossa sauna
Kyllä
Saunan lisätiedot
Sauna saneerauksen tarpeessa
Erillinen WC
Wc:t saneerauksen tarpeessa
Olohuoneen kuvaus
Saneerauksen tarpeessa
Makuuhuoneen kuvaus
Saneerauksen tarpeessa

Kunta/kaupunki
Lieto
Kaupunginosa/kylä
Loukinainen
Kiinteistötunnus
423-428-3-94
Rakennusvuosi
1972
Lisätietoja rakennusvuodesta
Ensimmäinen omakotitalo rakentaminen aloitettu 1964 ja toinen talo vuonna 1972.
Käyttöönottovuosi
1972
Tontin pinta-ala
2465 m²
Tontin omistus
Oma
Rakennusoikeus
493 m²
Kaavoitus
Asemakaava
Lisätietoja kaavoituksesta
Lisätietoja Liedon kaupunki
Rakennus- ja pintamateriaalit
Puu, tiiliverhoilu ja kuitusementtilevy
Kattotyyppi
Harjakatto
Katemateriaali
Pelti
Lämmitysjärjestelmä
Öljy
Ilmanvaihto
Painovoimainen ilmanvaihto
Vesijohto
Kunnallisvesi
Viemäröinti
Kunnallinen viemäriverkosto
Energiatodistus
Kyllä
Energialuokka
F2018
Asbestikartoitus
Ei

Liikenneyhteydet
Hyvät pyöräilytiet, bussipysäkki lähellä ja sujuvat yhteydet omalla autolla

Myyntihinta
79 000,00 €
Velaton myyntihinta
79 000 €
Neliöhinta
490,68 €/m²
Lisätietoja maksuista
Kohteen käyttö ollut vähäistä ja toteutuneita kustannuksia on vaikea arvioida.
Takaisin hakuun